Bauwesen Fachbegriffe
#7ee2fb
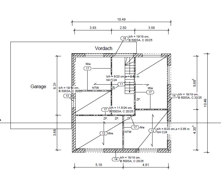
Positionspläne
Dki24
Der Entwurfsplanung deines Bauprojekts folgt die Genehmigungsplanung. An dieser Stelle werden diverse Pläne vom Architekten und Statiker erstellt. Hierzu gehören auch Positionspläne, die das Tragwerk des Hauses und die Positionen auf Grundlage der statischen Berechnungen darstellen. Erfahre hier, welchem Zweck die Positionspläne dienen, welche Inhalte dort zu finden sind und wie du einen Positionsplan lesen kannst.




